DTZ100 0-120°C/45mm, G1/2"

Dvojkovový teploměr se závitovým hrdlem je určen pro přímé měření teploty v teplovodních nebo parních rozvodech.
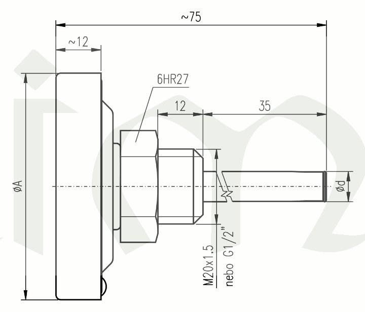
V hlavici zhotovené z nerez oceli je umístěn číselník s pohyblivým ukazatelem. V zadní části hlavice přístroje je vyvedeno závitové hrdlo se stonkem, ve kterém je umístěn dvojkový měřicí systém, který se změnou teploty otáčí. Tento pohyb je přenášen hřídelkou na ukazovatel, který pak na číselníku se stupnicí vykazuje výchylku udávající měřenou teplotu.

Montáž a demontáž je zakázáno provádět otáčením za hlavici teploměru. Přístroj se může upevnit pouze pomocí klíče č.27 za závitové hrdlo teploměru.

Měřicí rozsah 0..+120°C.
Dělení stupnice po 1°C
Dovolená tolerance ±2% z celého rozsahu
průměr číselníku 6cm.

Technické údaje

Rozsah stupnice

Měřicí rozsah

Dělení stupnice

Dovolená tolerance

Druh závitu

Barva tisku

0 až 120 °C

20 až 100 °C

po 1 °C

±2 % z celého rozsahu

G 1/2

černá

M 20x1,5

červená

modrá

øA = 60 mm pro DTZ 60

øA = 100 mm pro DTZ 100

ød = 8 mm

Funkční část stonku je konstrukčně přizpůsobena do tlaku 0,3 MPa.

 

 

Výroba teploměrů typu DTZ již byla ukončena,
Nahrazeno teploměry:  TR100/45_0-120°C +jímka.

Parametry výrobku:

Průměr hlavice 100 mm
Délka stonku 45 mm
Teplotní rozsah 0-120 °C
Provedení teploměru zadní=rovné
Cena: Na dotaz!
Do košíku

Volitelné příslušenství

Id: 1586,   ID_Pohoda : 6391,