Termostat RT8803.021U, 3sv. +7..+77°C

Regulátor teploty RT 8803 (dále jen RT) je určen k regulaci teploty v zařízeních napájených střídavým elektrickým prou­dem, jako je např. ohřívač vody. RT neslouží jako vypínač.

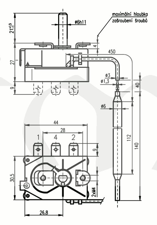
Popis
RT je jednopólový kapilární regulátor teploty založe­ný na principu dilatace kapaliny. RT sestává ze dvou základních částí - ze spínacího ústrojí a kapilárního teplotního čidla. Na krytu je ochranný zemnicí kolík. Regulovanou teplotu může uživatel nastavit v rozme­zí regulačního rozsahu, včetně využití RT jako proti­zámrzové pojistky.
Montáž RT se provádí dvěma šrouby M4.

Přednosti:

  • možnost variabilního umístění a natočení čidla nezávisle na poloze spínacího ústrojí
  • možnost montovat spínací ústrojí v libovolné poloze
  • možnost ohýbat kapiláru podle podmínek montáže
  • systém nemá žádnou vlastní spotřebu energie
  • nízké náklady na provoz a údržbu oproti elektro­nickým systémům

Technické údaje:

Technické údaje

Regulační rozsah

7 °C až 77 °C

Přesnost nastavení max. rozpínací teploty

±6 °C

Diference spínací hodnoty

2-5 K

Jmenovitý proud

16 (2,6) A

Jmenovité napětí

240 V

Meze teploty spínacího ústrojí

0 °C - 150 °C

Max.teplota čidla

90 °C

Krytí

IP 00, RT je vestavný

Třída ochrany

I

Životnost

100 000 automatických cyklů

Délka kapiláry

500 mm

Min.poloměr ohybu kapiláry

Rmin = 5 mm

Připojovací svorky

ploché kolíky 6,3 x 0,8 mm dle ČSN EN 612 10

Po dohodě lze posunout regulační rozsah k nižší teplotě, dodávat RT v provedení přepínacím nebo v provedení 8803.02U s vývody otočenými o 90° (úhlové provedení - viz náčrt). Další informace je možné obdržet přímo ve výrobním závodě. Výrobek je certifikován VDE.

Přehled typového označení

Typ

Regulační rozsah teplot [°C]

Provedení
(rozp./přep.)

Počet svorek

Provedení
(rovné/úhlové)

Zemnící kolík

8803.02

7-77

rozpínací

2

rovné

ano

8803.02U

7-77

rozpínací

2

úhlové

ano

8803.021

7-77

přepínací

3

rovné

ano

8803.021U

7-77

přepínací

3

úhlové

ano

Parametry výrobku:

Regulační rozsah +7..+77 °C
Délka kapiláry [cm], nebo provedení 50
Odkazy Příslušenství - ochranné jímky
Ke stažení: teplomery_termostaty_au.pdf
RT880x._navod.pdf
Cena: 254 Kč (bez DPH)
Cena: 308 Kč včetně DPH 21 %
Do košíku

Volitelné příslušenství

Id: 5621,   ID_Pohoda : E2802,